Konkurs Public Space

Nagrody i publikacje / 17 grudnia, 2022

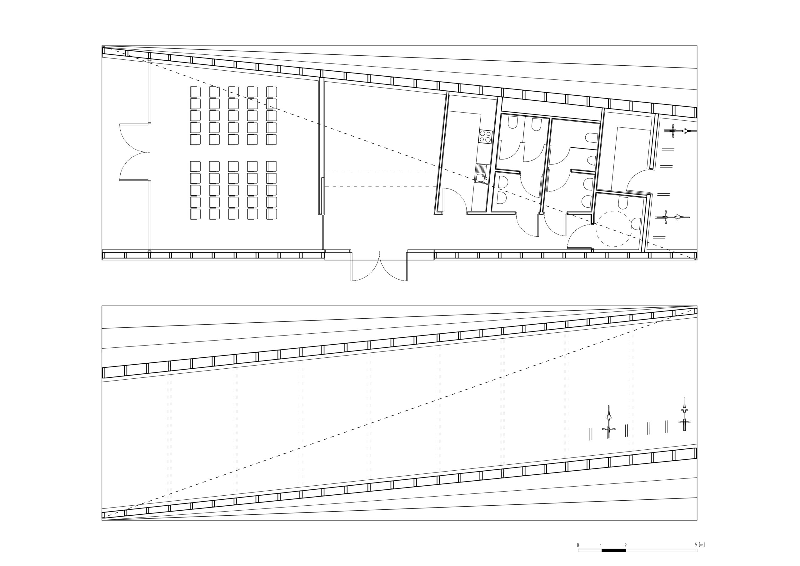
Centrum Aktywności Lokalnej w Rybniku po raz kolejny zaskoczyło nas swoim wyjątkowym uznaniem na międzynarodową skalę. Został wybrany jako jeden z 25 najlepszych przestrzeni spośród 326 zgłoszonych realizacji! Najważniejsza Europejska Nagroda za Przestrzeń Publiczną nagradza i promuje tworzenie oraz rewitalizację wspólnych przestrzeni.